Rarität an der Isar! Baugrundstück mit genehmigtem Vorbescheid in begehrter Lage!
84028 Landshut, Wohngrundstück zum Kauf
Kontaktdaten
-
NameHerr Bernhard Seubert
-
FirmaSeubert Grundbesitz & Immobilien GmbH
-
AnschriftStadtgraben 24
94315 Straubing -
Telefon
- zum Kontaktformular
Objektdaten
-
Objekt-ID205
-
ObjekttypenGrundstück, Wohngrundstück
-
Adresse84028 Landshut
-
LageWohngebiet
-
Grundstück ca.943 m²
-
Bebaubar nach§ 34 Nachbarschaftsbebauung
-
Kaufpreis1.795.000 EUR
Objektbeschreibung
Rarität an der Isar! Baugrundstück mit genehmigtem Vorbescheid in begehrter Lage!
Bei diesem exklusiv von uns angebotenem Baugrundstück handelt es sich um eine absolute Rarität: ein ca. 943 m² großes Baugrundstück in absolut ruhiger Lage und sonniger Ausrichtung. Das Ausnahme-Objekt befindet sich direkt am Isarufer im Osten von Landshut.
Dank der Lage in erster Reihe zur Isar ist dieses Grundstück unverbaubar und eröffnet zu allen Jahreszeiten eine wohltuende Atmosphäre. Ein genehmigter Vorbescheid liegt vor. Das Grundstück kann mit zwei Baukörper (inkl. Tiefgarage), die über ein gemeinsames Treppenhaus verbunden sind bebaut werden. Zwischen dem sonnigen Baugrundstück und der Isar verläuft ein Fußgänger- und Radweg. Über diesen Weg kann die Insel entlang der Isar auf einer Strecke von ca. 7km umrundet werden und führt Sie über den Isarspitz, vorbei an unzähligen Freizeitmöglichkeiten (Tennisplatz, Bogenschießen, Fußballplatz, Bahnen-Golf, Basketballplatz), Parkanlagen und Restaurants.
Dieses Objekt bietet die äußerst seltene Gelegenheit, in unverbaubarer Lage an dem wohl schönsten Wohngebiet von der Stadt Landshut individuelle wie luxuriöse Wohnvorstellungen zu verwirklichen.
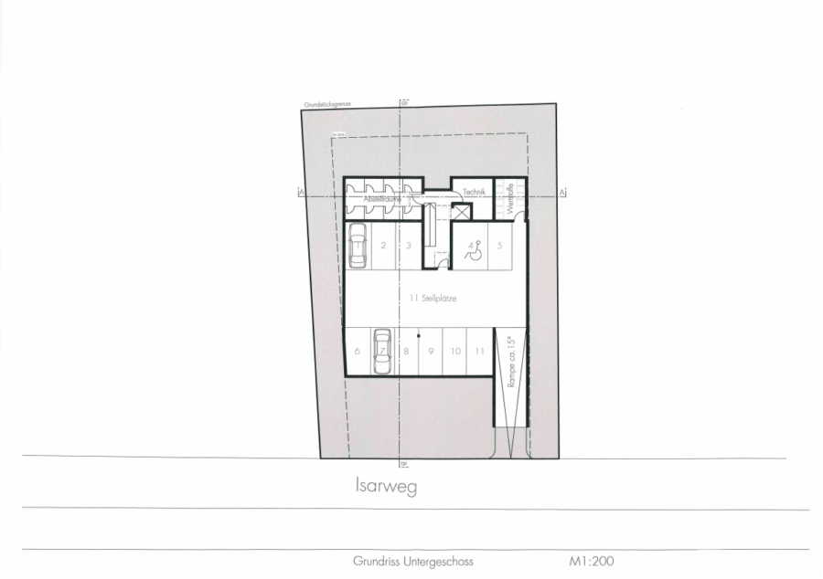
Für dieses Baugrundstück gibt es bereits einen genehmigten Vorbescheid. Hierzu sind die Pläne unter anderem in der Fotogalerie ersichtlich. Hierbei wurden drei Vollgeschosse (Erdgeschoss, Obergeschoss und Dachgeschoss), sowie eine Tiefgarage mit elf Stellplätzen und acht Kellerabteilen genehmigt. Das Objekt teilt sich auf zwei Baukörper, diese über ein gemeinsames Treppenhaus verbunden sind auf. Bei dem Bauvorhaben wurden acht Wohneinheiten in den verschiedensten Größen geplant. Besonders über die Etagenwohnungen mit großem Balkon oder Dachterrasse haben die Bewohner einen herrlichen Blick auf die Isar und in die Natur. Auch die Erdgeschosswohnungen mit großer Terrasse und Garten lassen keine Wünsche offen.
Beachten Sie, dass die Planung nur ein Beispiel darstellt, wie Sie bauen könnten.
Lage
Sie sehen gerade einen Platzhalterinhalt von Google Maps. Um auf den eigentlichen Inhalt zuzugreifen, klicken Sie auf die Schaltfläche unten. Bitte beachten Sie, dass dabei Daten an Drittanbieter weitergegeben werden.
Mehr Informationen84028 Landshut, Deutschland (auf Google Maps ansehen)
















